Kindergarten Dickloo, Oberglatt
Wettbewerb, 1. Rang | 2021 | Realisierung 2023

+

Der Kindergarten liegt wie eine grüne Insel im Agglomerationsraum, umgeben von Waldstücken, Spielplatz, Freizeitanlage und Familiengärten. Ein Weg verbindet das Grundstück mit den Wohngebieten im Osten und Westen. Der eingeschossige Neubau gliedert sich in drei hohe Baukörper für die Haupträume und zwei niedrigere Verbindungstrakte für Nebennutzungen. Die Baukörper mit ausladenden Dächern rhythmisieren das Volumen, vermitteln zu den Nachbargebäuden und markieren Hauptnutzung und Eingang.

Die zentrale Eingangshalle verbindet Nord- und Südseite, beherbergt die Garderoben und schafft über direkte Ausgänge kurze Wege zu den Außen-Spielbereichen. Oblichtbänder sorgen für Tageslicht und Lüftung. Die niedrigen Trakte enthalten Toiletten, Gruppenräume, Technik, Küche und Besprechungszimmer. So entsteht ein klar gegliederter Bau, der Hauptfunktionen hervorhebt und sich harmonisch in die Umgebung einfügt.

Siehe hier für mehr Infos zum Wettbewerb.

Bilder: Beat Bühler / Barbara Bühler

Sanierung und Umbau Reiheneinfamilienhaus, Thalwil
Direktauftrag privat | 2021 | Realisierung 2022

+

Effiziente Grundrisse und Schnitte prägen die Struktur des 1962 erbauten Hauses. Das dienende Kellergeschoss und das Rückzugszimmergeschoss stehen im Kontrast zum Wohngeschoss, dessen überhohe Raumhöhe dem Haus seine charakteristische Grosszügigkeit verleiht. Das Dachzimmer mit Terrasse, Dusche und Cheminée lädt dazu ein, den Alltag nach draussen zu verlagern.

Die neuen EigentümerInnen wünschten sich eine Sanierung von Küche, Nasszellen und Oberflächen. Mit gezielten Eingriffen wurde das Haus den heutigen Bedürfnissen angepasst: Eine Wandverschiebung im Zimmergeschoss ermöglichte ein zusätzliches Bad, während Grundrissanpassungen im Wohnbereich einen offenen, lichtdurchfluteten Raum schufen. Die neue Wohnküche als Schreinermöbel bildet das Zentrum des Hauses.

Bilder: Mentha Walther Architekten GmbH

Garderoben- und Clubgebäude Hönggerberg
Offener Wettbewerb, 1. Rang 2017 | Ersatzneubau | Realisierung 2022

+

Das Haus besticht durch gestalterische Poesie, höchste Nachhaltigkeitsstandards und eine selbstverständliche Integration der Technik. Die klare, landverbrauchsarme Setzung löst die öffentliche Wegführung direkt im Gebäudegrundriss.

Zwei leicht versetzte Volumen unter einem Dach definieren einen diagonal durch das Grundstück verlaufenden öffentlich zugänglichen Weg, verbinden die Rasen- und Kunstrasenfelder und erschließen die Nutzungen entlang der „Promenade Architecturale“. Über einläufige Aussentreppen wird das Obergeschoss erschlossen; das Untergeschoss kann dank des Geländeversprungs von Norden her ebenerdig betreten werden.

Struktur und Fassade bestehen aus Holz: 14 Stützenreihen bilden das Grundgerüst, Decken und Fassaden sind aus vorfabrizierten Holzelementen eingefügt. Die Haustechnik setzt auf Nachhaltigkeit: Heizenergie und Warmwasser kommen von einer Luft-/Abwasser-Wärmepumpe, die Energie des Schmutzwassers wird über einen FEKA-Tank rückgewonnen, im südlichen Dach ist eine vollflächige PV-Anlage integriert.

Siehe hier für mehr Infos zum Wettbewerb.

Bilder Beat Bühler Fotografie

Alte Forchstrasse, Forch II
Direktauftrag | Umbau und Sanierung EFH mit Anbau zu DEFH | Realisierung 2020

+

Das Haupthaus wurde durch die Eigentümerfamilie 1933 erbaut und 1989 um einen Anbau erweitert. Im Projektteil "Forch II" sehen sie den Hausteil von 1989.

Seit der Schliessung der unbewachten Bahnübergänge 2012 wurde das Haus über eine provisorische Zufahrt im Süden erschlossen, was eine umständliche Ankunftsituation erzeugte – dies wurde im Zuge der Sanierung behoben. Da das ursprüngliche Raumangebot nicht mehr benötigt wurde, wurden die beiden Haushälften zu eigenständigen DEFH-Hälften umgebaut.

Der Haupteingang des 30er-Jahre-Hauses im Norden wurde aufgehoben, das Haus nach Süden orientiert, das Gartengeschoss aktiviert und ein Gästezimmer mit Bad ergänzt. Das Dachgeschoss wurde ausgebaut und mit Lukarnen versehen, Küche und Bäder erneuert, Grundrisse an heutige Bedürfnisse angepasst. Der Anbau aus den 80ern wurde nach Osten ausgerichtet, die Doppelgarage zu einem Atelier mit Bad umgebaut, der Aussenbereich begrünt.

Eine neue interne Erschliessung, Küche und akustische Trennung im Erdgeschoss ermöglichen die Nutzung als Familienhaus. Die gesamte Haustechnik wurde ersetzt, das Gebäude energetisch ertüchtigt; Wärme und Strom stammen nun aus Erdsonden und PV-Anlage.

Bilder Beat Bühler Fotografie

Sonnenbergrain, Bern
Direktauftrag | Umbau und Sanierung Eck-Einfamillienhauses | Realisierung 2013 - 2014

+

Das Eckhaus von 1901 steht im Inventar der Denkmalpflege Bern und ist als beachtenswert eingestuft. Seit dem Einzug der Eigentümerfamilie 1957 wurden nur minimale Eingriffe vorgenommen, Ausstattung und Haustechnik waren stark veraltet. Eine Sanierung war unausweichlich, Ziel war die behutsame Anpassung an heutige Bedürfnisse bei grösstmöglichem Erhalt der historischen Substanz und der ursprünglichen Wohnstruktur.

Die Sanierung verband Komfort mit Respekt vor dem Bestand: Haustechnik wurde komplett erneuert, die Wohnfläche durch gezielte Eingriffe erweitert. Verschachtelte Estriche wurden aufgehoben, kleinste Zimmer zugunsten offener Wohn- und Essbereiche, eines grossen Zimmers im Obergeschoss sowie eines Familienbads im Dachgeschoss aufgelöst. Farb- und Materialkonzept basieren auf natürlichen Materialien, verlorene Elemente wie der Rupfen im Treppenhaus wurden rekonstruiert, Details wie Klingelschild, Glocke oder Steingutböden sorgfältig restauriert.

Bilder Architekturfotografie Gempeler

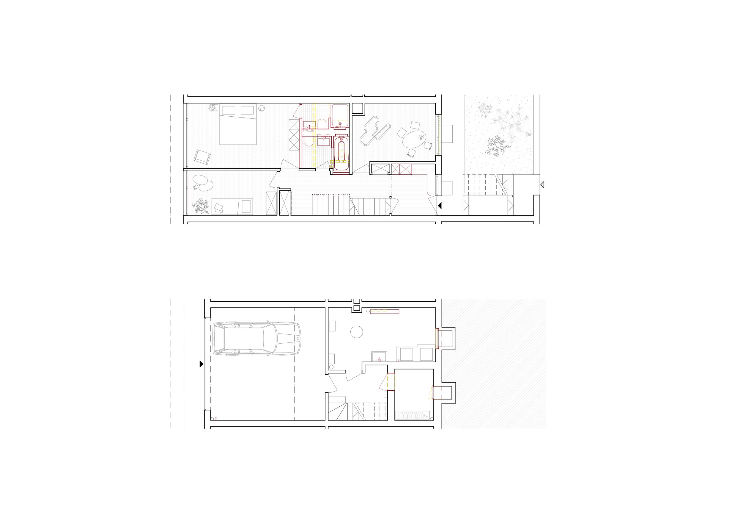
Sanierung und Umbau Dachwohnung Zürichberg, Zürich
Direktauftrag privat | 2023 | Realisierung 2023/2024

+

Die Dachwohnung in einem denkmalgeschützten Haus zeichnet sich durch eine eigenwillige Geometrie aus. Die Wohnung ist 2 Geschossig. Im Erdgeschoss wurde der bestehende Eingangsbereich durch die neue Farbgebung nobilitiert und räumlich zusammengefasst. Die angrenzende Küche wurde erneuert. Im Obergeschoss wurden ein neues Bad und neue Einbauschränke eingebaut. Im Kontrast zu der selbstbewussten und prägnanten Farbgebung im Erdgeschoss wurde hier eine zurückhaltende und reduzierte Materialisierung gewähtlt. Boden, Decken und Wände sind mit dem gleichen warm-grauen Spachtelbelag behandelt. Ergänzend dazu die warmen hözernen Einbauschränke, deren Fronten mit Korbgeflecht versehen sind.

Es ensteht eine ruhige, warme und kontemplative Atmosphäre, ein Ort für den Rückzug. Im Turmzimmer wurde mittels hochwertigen Schreinereinbauten ein zusammenhängender vielseitig nutzbarer Raumkokon kreiiert, der als Bibliothek, Fernsehnische und als Home-Office dient.

Bilder: Marcel Rickli

Umbau Schulhaus Wasserwerkstrasse, Zürich
Planerwahl im offenen Verfahren | 2019 | Zuschlag | Realisierung 2020 - 2022

+

Der dreigeschossige Bau am rechten Limmatufer, 1783 als erste grosse Fabrikanlage ausserhalb der Zürcher Stadtmauern errichtet und denkmalgeschützt, wurde bis 2019 als Hort genutzt. Für eine befristete Nutzung von zehn Jahren wurde das Gebäude instand gesetzt, wobei die wertvolle Substanz schonend behandelt, die Haustechnik punktuell erneuert und Schnittstellen für die geplante Totalsanierung ab 2030 berücksichtigt wurden.

Die grössten Massnahmen lagen im Untergeschoss mit neuem Mehrzwecksaal, Gastroküche, Garderoben und WC-Anlagen. Im Mittelteil wurden ältere Eingriffe rückgebaut und ein Lift eingebaut. Das Erdgeschoss blieb weitgehend erhalten, im Obergeschoss entstanden drei Klassenzimmer, Brandschutzmassnahmen, neue Oberflächen und Lichtführung; denkmalpflegerisch relevante Bauteile wie Stukaturen wurden instand gesetzt.

Siehe hier für mehr Infos zum Wettbewerb.

Bilder: Aussenaufnahme vor Umbau: Beat Bühler Fotografie | Innenaufnahmen: Mentha Walther Architekten GmbH | Aussenaufnahme Nacht, Detail Leuchte: Alexander Gemepeler Architekturfotografie

Alte Forchstrasse, Forch I
Direktauftrag | Umbau und Sanierung EFH mit Anbau zu DEFH | Realisierung 2020

+

Das Haupthaus wurde durch die Eigentümerfamilie 1933 erbaut und 1989 um einen Anbau erweitert. Im Projektteil "Forch I" sehen sie den Hausteil von 1933.

Seit der Schliessung der unbewachten Bahnübergänge 2012 wurde das Haus über eine provisorische Zufahrt im Süden erschlossen, was eine umständliche Ankunftsituation erzeugte – dies wurde im Zuge der Sanierung behoben. Da das ursprüngliche Raumangebot nicht mehr benötigt wurde, wurden die beiden Haushälften zu eigenständigen DEFH-Hälften umgebaut.

Der Haupteingang des 30er-Jahre-Hauses im Norden wurde aufgehoben, das Haus nach Süden orientiert, das Gartengeschoss aktiviert und ein Gästezimmer mit Bad ergänzt. Das Dachgeschoss wurde ausgebaut und mit Lukarnen versehen, Küche und Bäder erneuert, Grundrisse an heutige Bedürfnisse angepasst. Der Anbau aus den 80ern wurde nach Osten ausgerichtet, die Doppelgarage zu einem Atelier mit Bad umgebaut, der Aussenbereich begrünt.

Eine neue interne Erschliessung, Küche und akustische Trennung im Erdgeschoss ermöglichen die Nutzung als Familienhaus. Die gesamte Haustechnik wurde ersetzt, das Gebäude energetisch ertüchtigt; Wärme und Strom stammen nun aus Erdsonden und PV-Anlage.

Bilder Beat Bühler Fotografie

Jägerstrasse, Muri bei Bern
Direktauftrag | Umbau und Renovation Einfamillienhauses | Realisierung 2016

+

Das freistehende Einfamillienhaus wurde im Jahr 1919 im Chalet-Stil gebaut und in den 1960er Jahren erweitert. Das Haus ist in einem guten und gepflegten Zustand - aufgrund des Zeitunkts der letzten Renovation, stand eine Sanierung von Küche und Bädern sowie der Wunsch nach einer Vergrösserung der Terrasse im Zentrum dieses Umbaus.

Mit einfachen Mitteln, gezielten Eingriffen und unter Verwendung einzelner Originaleinbauelemente wurde das Haus mit viel Finesse modernisiert. Die Küche wurde erneuert und zum Esszimmer geöffnet, das Bad im 1. Obergeschoss wurde vergrössert und den heutigen Ansprüchen angepasst. Im Garten wurde eine neue grosszügige Veranda mit Pergola in Holzbauweise erstellt.