Schulhaus Brühl, Dornach
Projektwettbewerb im offenen Verfahren | 2025 | 1. Rang

+

Auftraggeber: Gemeinde Dornach | mit Beer Landschaften

Die Primarschule wird durch drei Hauptgebäude und den zentralen Pausenplatz geprägt. Die südwestlichen Bereiche bleiben unbebaut und werden als Grünraum aufgewertet. Die Hochbauvolumen orientieren sich zum Pausenplatz, ihre Haupteingänge sind über eine Passerelle verbunden. Der Neubau positioniert sich in der nordwestlichen Arealecke, reagiert auf die Platzverhältnisse und nutzt die Topografie effizient. Das Untergeschoss erhält einen neuen Hauptzugang von Norden, während das Erdgeschoss über die Passerelle in die bestehende Anlage eingebunden wird.

Die Aufstockung des Bestandstrakts führt das bestehende Volumenkonzept weiter. Durch die kompakte Nutzung vorhandener Flächen und ein neues Atrium werden volumetrische Reserven aktiviert und ein Mehrwert für die gesamte Anlage geschaffen.

Die Anlage lebt von Nutzungsvielfalt und dient als Treff-, Aufenthalts- und Lernort. Die Kindergartenparzelle wird durch einen Neubau ergänzt, der sich in die Topografie einfügt und peripher erschlossen ist. Ein gemeinsamer Aussenraum bildet das Zentrum der Kindergartenanlage. Die Gebäude sind in Hybridbauweise geplant. Die Materialien werden ihren Eigenschaften entsprechend eingesetzt: Holz für Leichtigkeit und Wärme, Beton für Robustheit, Stampflehm für Raumklima und Identität, Stahl für Effizienz und Flexibilität. Kreislaufwirtschaft und klare Systemtrennung bilden zentrale konstruktive Prinzipien.

Schulhaus Bodenacker, Münchenbuchsee
Projektwettbewerb im selektiven Verfahren | 2025

+

Auftraggeber: Gemeinde Münchenbuchsee | mit Uniola AG

Die Schulanlage Bodenacker in Münchenbuchsee wird mit gezielten Eingriffen weiterentwickelt und zukunftsfähig gemacht. Bestehende Gebäude werden sorgfältig verbunden, ergänzt und energetisch saniert mit Respekt vor dem Bestand und dem besonderen Charakter der Anlage. Im Zentrum entsteht ein neuer Verbindungstrakt, der als Haupteingang, Begegnungsort und Bindeglied zwischen den Schultrakten dient. Bestehende Gebäude werden barrierefrei erschlossen und flexibel nutzbare Lernräume geschaffen. Auch die Aula wird mit einem zeitgemässen Neubau, der Raum für Musik und Fachunterricht bietet ersetzt.

Die Umgebung mit ihren gewachsenen Strukturen und alten Bäumen wird auch weitergebaut. Neue Plätze, Sitznischen, Spielflächen und ein Aussenklassenzimmer schaffen vielfältige Lern- und Aufenthaltsorte im Grünen. Mit klugen Eingriffen und einem starken Fokus auf Nachhaltigkeit entsteht ein einladender Lernort für heute und morgen, im Einklang mit der Umgebung und der Geschichte des Ortes.

Schulhaus Burgerau, Rapperswil-Jona
Projektwettbewerb im selektiven Verfahren | 2025

+

Auftraggeber Stadt Rapperswil-Jona | mit Klötzli Friedli Landschaftsarchitekten AG

Das Schulhaus Burgerau, nur wenige Schritte vom Zürichsee entfernt, verbindet historischen Charme mit einer zeitgemässen Erweiterung. Der denkmalgeschützte Altbau bleibt erhalten und wird durch den aufgestockten Custerbau, eine neue Aula und eine Doppelturnhalle ergänzt.

Offene Lernlandschaften, flexible Cluster und helle Gemeinschaftszonen bieten Raum für moderne Unterrichtsformen. Die Freiräume sind bewusst als Treffpunkte für Schule und Quartier gestaltet - mit Wildblumenwiesen, Spiel- und Sportbereichen sowie ruhigen Aufenthaltszonen. Nachhaltigkeit steht im Zentrum: Wiederverwendung bestehender Strukturen, Holzbauweise, PV-Anlagen, extensive Begrünungen und ein innovatives Regenwassermanagement reduzieren CO₂ und schaffen ein gesundes Mikroklima. So entsteht ein zukunftsweisender Bildungs- und Begegnungsort, der Lernen, Bewegung und Gemeinschaft fördert.

Garderobengebäude Affoltern am Albis
Gesamtleistungswettbewerb | 2024 | 2. Rang

+

Mit Renggli AG

Die neue Sportanlage im Moos wird als zweigeschossiges, langgestrecktes Volumen geplant. Herzstück ist eine offene Erschliessungshalle mit markantem, weit auskragendem Pultdach, die zur Adresse und zum öffentlichen Gesicht der Anlage wird. Sie empfängt Besucher:innen, schafft Orientierung und fungiert als zentraler Treffpunkt bei Grossanlässen.

An die Halle angegliedert ist ein funktional klar strukturiertes Gebäude mit Garderoben, Technik, Lagerflächen, Büro und einem Restaurant mit Terrasse und direktem Blick auf die Spielfelder. Die radikale Einfachheit des Baukörpers sorgt für Klarheit, hohe Effizienz und eine elegante, schwebende Wirkung über dem leicht erhöhten Sockel.

Die Holzkonstruktion ermöglicht flexible Anpassungen, grosszügige Raumhöhen im Erdgeschoss und ein nachhaltiges Baukonzept ohne Untergeschosse. Ein Retentionsdach speichert Regenwasser und verbessert die ökologischen Eigenschaften. Rhythmische Fassaden mit offenen Metallschränken, Nischen und Laubengängen schaffen eine funktionale sowie lebendige Gestaltung.

Seepolizei Oberrieden
Offener Projektwettbewerb | 2023

+

Auftraggeber Kanton Zürich | mit Klötzli Friedli Landschaftsarchitekten AG

Der bestehende Baukörper der Seepolizei – ein aus der Funktion gewachsenes Konglomerat in Massiv- und Stahlbauweise – bleibt in seiner Volumetrie grösstenteils erhalten. Im Südwesten, zur Strassenseite hin, wird das Gebäude durch einen Anbau ergänzt. Das Neubauvolumen klammert sich an und über den Bestand und überragt diesen um ein Geschoss, während es seitlich, ost- & westseitig, die Proportionen des Bestandes aufnimmt.

Die neue Seepolizei wächst somit in die Höhe und verlagert ihr Gewicht zum Land hin. Ein turmartiges Kleinvolumen bildet den höchsten Punkt und gibt dem Gebäude eine neue Fernwirkung; mit seinen neuen Proportionen, seinem Aufbau und der Staffelung erinnert das Volumen an ein wohltariertes und ruhig gleitendes Containerschiff, welches gerade in See stösst.

Schulhaus Riedhof, Zürich
Selektiver Projektwettbewerb | 2023

+

Auftraggeber Stadt Zürich | mit Klötzli Friedli Landschaftsarchitekten AG

Zur Erfüllung des umfangreichen Raumprogramms, und unter der Prämisse des nachhaltigen Umgangs mit Landreserven, wird der Erweiterungsneubau entgegen Alfred Roths Forderungen in seinem 1950 erschienenen Werk «Das neue Schulhaus», als ein neues, grosses Volumen konzipiert.

Die unterschiedlichen Betriebseinheiten werden durch ihre Gliederung und Staffelung von Sport, Musik & Bibliothek, Verpflegung & Mehrzweckräume, Klassenräume & Lehrerzimmer sowie Werkstatträume als Funktionseinheiten zusammen gefasst - sie positionieren sich als eigenständige, vertikal gestappelte „Pavillons“ innerhalb einer Grossfigur. Jedes Geschoss ist als eine Lern-,Spiel- und Begegnungslandschaft konzipiert. Die Funktionseinheiten haben ihre eigne Identität innerhalb der Gesamtlage und die schulischen Nutzungen erhalten einen kindgerechten Massstab.

Schulhaus Langwiesen, Winterthur
Offener Projektwettbewerb | 2022 | 4. Rang

+

Auftraggeber Stadt Winterthur | mit Klötzli Friedli Landschaftsarchitekten AG

Die Anlage besticht durch ihre klare Hofstruktur mit vier Schultrakten, die einen zentralen Pausenhof fassen und durch offene Ecken Ein- und Ausblicke ermöglichen. Schlichte Eingänge, kindgerechte Massstäblichkeit und fein gestaffelte Volumen prägen ihren Charakter. Die Grundstruktur bleibt erhalten, wird jedoch gezielt an heutige Anforderungen angepasst: Ein Lift im Spezialtrakt gewährleistet Barrierefreiheit, neue Gruppenräume erweitern als klar ablesbare Anbauten die Klassentrakte.

Die bestehenden Turnhallen werden zur Tagesschule umgebaut. Holzbau-Einbauten in Box-in-Box-Struktur schaffen neue Räume, während die Hülle bestehen bleibt. Ein offener Durchgang verbindet die Hallen und öffnet den Mitteltrakt. Im Osten ergänzen Neubauten mit Klassenzimmern, Handarbeit, Therapie und Kindergarten die Anlage. Ihre versetzte Volumetrie reagiert auf das Gefüge des Bestands, schafft neue Aussenräume und führt den architektonischen Charakter selbstverständlich fort.

Areal Schützen / Bahnhof und Burgmatt
Studienauftrag im selektiven Verfahren | 2021 | 1. Rang

+

Auftraggeber Einwohnergemeinde Laufenburg

Die Liegenschaft Hotel Schützen liegt zentral zwischen Bahnhof und Altstadt und ist seit dem Brand 2018 unbewohnbar. Die Stadt Laufenburg plant eine Gesamtentwicklung, die die Schulanlage Burgmatt erweitert, neue Wohn- und Arbeitsräume schafft und öffentliche Freiflächen aufwertet. Ziel ist ein lebendiges Stadtquartier, das Bildung, Arbeit und Begegnung vereint.

Gestaffelte Pausenflächen und flexible Schulbauten stärken die Lernumgebung; grosszügige Treppen und Rampen verbinden die Ebenen und schaffen fliessende Übergänge. Der frühere Parkplatz wird zu einem Stadtplatz, der Aufenthalt, Spiel und Austausch fördert. Auf dem Schützenareal entstehen neue Gebäude und ein kompaktes Autosilo mit integrierter Photovoltaik: ein urbanes Kraftwerk. So entsteht ein nachhaltiges, vernetztes Quartier, das Bildung, Arbeit und öffentliches Leben in Laufenburg stärkt.

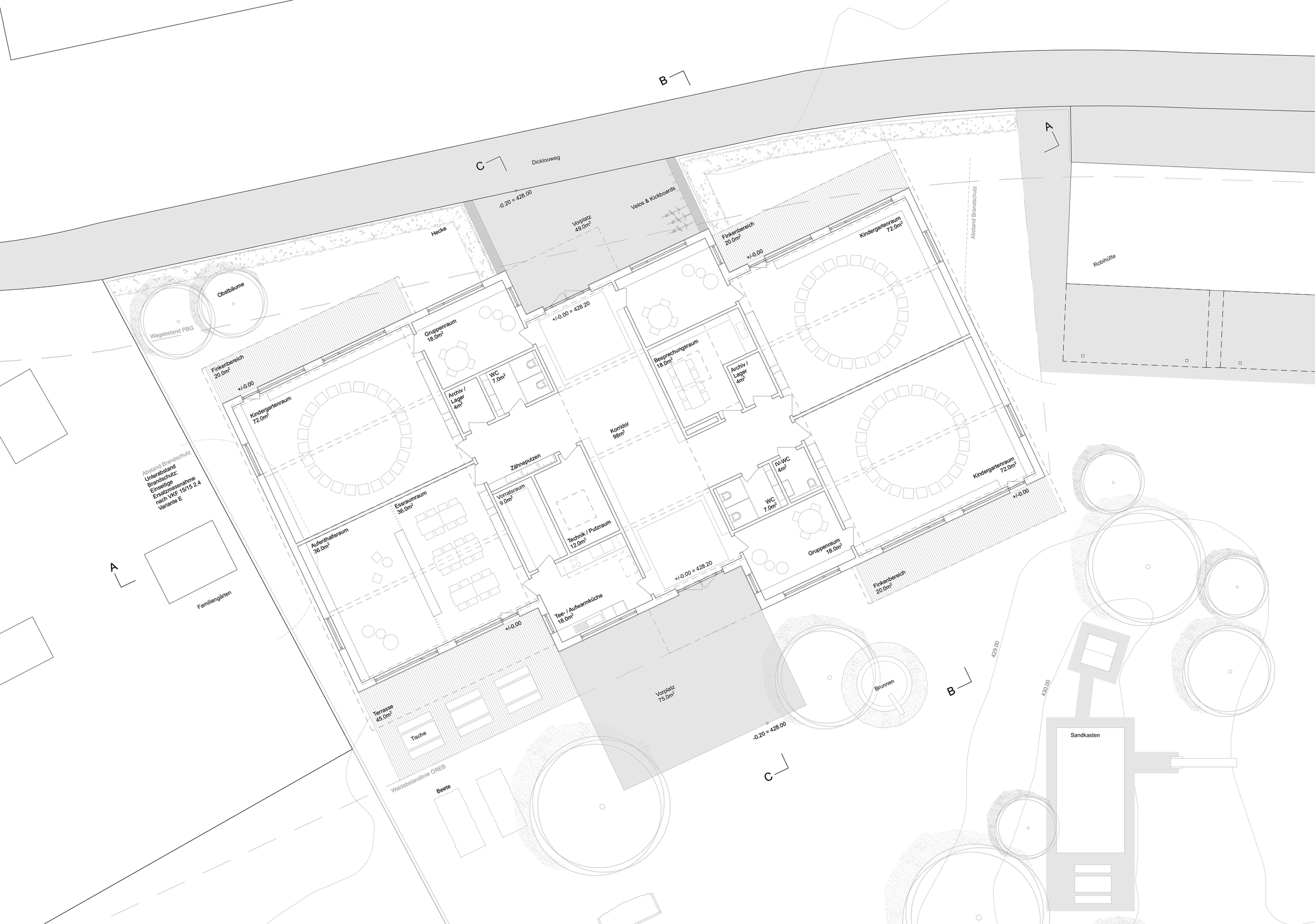
Neubau Kindergarten Dickloo, Oberglatt
Selektiver Projektwettbewerb | 2021 | 1. Rang | Gebaut

+

Mit Carolin Riede Landschaftsarchitektur

Der neue Kindergarten liegt auf einer grünen Insel, eingebettet zwischen Waldstücken und Nachbarschaften mit Spielplatz, Freizeitanlage und Familiengärten. Der eingeschossige Bau ist in drei hohe Hauptkörper und zwei niedrigere Verbindungskörper gegliedert, die quer zur Parzelle verlaufen. Diese Struktur rhythmisert das Gebäude, vermittelt zwischen den kleineren Nachbarbauten und der grösseren Freizeitanlage und schafft klare halböffentliche Aussenräume.

Die zentrale Eingangshalle durchmisst die gesamte Gebäudetiefe und verbindet Nord- und Südseite, während Garderoben und Nebenräume in den niedrigeren Baukörpern untergebracht sind. Die Haupträume an Ost- und Westseite sind lichtdurchflutet und bieten durch Oblichtbänder eine natürliche Belüftung. Zusätzliche Ausgänge gewährleisten kurze Wege ins Freie, und die ausladenden Dächer betonen die Haupträume und markieren den Haupteingang als klare Adresse für das Quartier.

Siehe hier für mehr Infos zum Bau.

Siedlung Hirzenbach
Planerwahlverfahren für Generalplaner auf Einladung | 2020

+

Mit Carolin Riede Landschaftsarchitektin BSLA

Mit gezielten Eingriffen wird die Wohnanlage an die Bedürfnisse der Bewohner angepasst, ohne ihren Charakter zu verändern. Die Grünflächen auf der Westseite werden zu blühenden Wiesen umgestaltet, in die ein Pavillon als neuer Gemeinschaftsraum eingebettet ist. Der Pavillon ist ein vorfabrizierter Holzbau mit flach geneigtem Satteldach, der über der Wiese zu schweben scheint.

Die bestehenden Balkone des Hochhauses erhalten vorgefertigte Beton-Elemente mit grünlichen Faserzementbrüstungen, die Tiefe und Fassung schaffen. Die V-Form der Brüstungen findet sich auch im Pavillon wieder. Neue Velo- und Containerunterstände greifen die gleiche Material- und Formsprache auf. Alle Eingriffe sind klar, robust und nachhaltig, bringen frische Gestaltung in die Anlage und verbinden Funktionalität mit ästhetischem Mehrwert.

Fussballtribüne Buechenwald, Gossau
Projektwettbewerb im offenen Verfahren | 2019

+

Die Stadt Gossau plant ihre Sportinfrastruktur in den Gebieten Buechenwald und Rosenau zu bündeln. Mit dem Neubau des Hallenbads im Buechenwald wird das bestehende Fussballhauptfeld gemäss Masterplan verschoben. Westlich davon entsteht eine neue Tribüne mit Gastronomie, Garderoben sowie Räumen für Betrieb und Unterhalt der 1.-Liga-Sportanlage.

Zwei leicht versetzte, einander zugeneigte Dächer überspannen das Areal längs und fassen drei geschlossene Baukörper auf der Westseite sowie die offene Tribüne auf der Ostseite. Das Raumprogramm ist seriell in diesen Volumen angeordnet, die Eingänge liegen dazwischen. Der zweigeschossige Kopfbau markiert den städtebaulichen Auftakt und orientiert sich zum Platz zwischen Hallenbad und Sporthalle. Südlich folgen zwei niedrigere Volumen mit Garderoben und Betriebsräumen.

37 Holzstützenreihen bilden das konstruktive Rückgrat. Riegel und Pfosten bestehen aus Brettschichtholz, die Dachträger sind gevoutet und mit Zugstangen ausgesteift. Ein Trapezblech mit Lattung überspannt die eingeschossigen Volumen und schliesst die Struktur ab.

Schulanlage Grossaffoltern
Projektwettbewerb im selektiven Verfahren | 2018

+

2018 wurde ein selektiver Wettbewerb für die Sanierung und Erweiterung der Schulanlage Grossaffoltern ausgeschrieben. Die bestehende Anlage liegt im Süden des Dorfkerns, eingebettet in eine landwirtschaftlich geprägte Umgebung. Ziel war es, den Bestand zu klären und neue Unterrichtsräume für die Eingangsstufe zu schaffen. Das Konzept umfasst vier zentrale Eingriffe: Rückbau des Kindergarten- und Abwartshausteils zur Schaffung klarer Adressen und Freiräume, Aufstockung des Mehrzweckhauses für ein ausgewogenes Volumenverhältnis und Neubau der Eingangsstufe an der Nordseite des Pausenplatzes. So entsteht eine klare Abfolge von Freiflächen: Eingangsplatz, Pausenplatz, Sportfeld und Spielplatz, und eine verbesserte Organisation der Gebäude.

Die Bestandsgebäude erhalten ein neues Fassadengewand, während der Neubau in Einsteinmauerwerk mit Holz-Dach realisiert wird. Zentrales Treppenhaus und Lift verbinden die Bereiche und fassen die Schulanlage städtebaulich wie funktional zusammen.

Schulanlage Vorstadt, Solothurn
Projektwettbewerb im selektiven Verfahren | 2018

+

Mit Müller Wildbolz Landschaftsarchitekten GmbH

Die Schulanlage Vorstadt liegt im südwestlichen Stadtteil von Solothurn und umfasst ein Hauptgebäude, ein Nebengebäude, eine Turnhalle und die zugehörigen Aussenanlagen. Die bestehenden Gebäude sind sanierungsbedürftig und sollen den aktuellen pädagogischen Anforderungen angepasst werden. Ergänzt wird das Areal durch einen Neubau für einen Dreifach-Kindergarten und ein Mehrzweckhaus mit zwei Spezialräumen.

Die Neubauten fügen sich behutsam in die Landschaft ein, respektieren den wertvollen Baumbestand und nehmen Bezug auf die Formensprache des Bestands, ohne sie zu kopieren. Die Pausenflächen werden südlich gefasst und der offene Hof nach Osten orientiert. Ein Weg verbindet die neuen Gebäude und dient der Erschliessung der Nutzungen. Öffentliche Bereiche wie Bibliothek und Musikzimmer im Mehrzweckhaus können flexibel als Aula genutzt werden. Die drei Kindergärten sind seriell angeordnet und bieten direkten Zugang zu den neuen Aussenbereichen.

Garderoben- und Clubgebäude Hönggerberg, Zürich
Projektwettbewerb im offenen Verfahren | 2017 | 1. Rang | Gebaut

+

In Zusammenarbeit mit S2L Landschaftsarchitekten

Zwei leicht versetzte Volumen unter einem gemeinsamen Dach definieren einen diagonal verlaufenden, öffentlich zugänglichen Weg durch Haus und Grundstück. Diese Geste verbindet das Rasenfeld im Osten mit dem Kunstrasenfeld im Westen und erschliesst zugleich die Nutzungen entlang der „Promenade Architecturale“. Über aussenliegende, einläufige Treppen gelangt man ins Obergeschoss mit den Garderoben für den Breitenfussball.

Der natürliche Geländeversprung ermöglicht eine ebenerdige Erschliessung des Untergeschosses von Norden her. Durch die kompakte Setzung und klare Wegeführung konnten trotz grösserem Bauvolumen die versiegelten Flächen reduziert werden. Struktur und Fassade bestehen aus Holz: Vierzehn Stützenreihen bilden das statische und architektonische Grundgerüst, in das vorfabrizierte Holzdecken und Fassadenelemente eingefügt sind.

Auch die Haustechnik folgt einem nachhaltigen Konzept: Eine Luft-/Abwasser-Wärmepumpe liefert Heizenergie und Warmwasser, die Abwasserwärme wird über einen FEKA-Tank rückgewonnen. Eine vollflächig integrierte PV-Anlage auf dem Süddach ergänzt das nach Minergie-P-eco geplante Gebäude.

Siehe hier für mehr Infos zum Bau.

Schulhaus Paul Klee, Münchenbuchsee
Projektwettbewerb im selektiven Verfahren | 2025

+

Auftraggeber: Gemeinde Münchenbuchsee | mit Uniola AG

Mitten im Dorfzentrum von Münchenbuchsee wird das Schulareal rund um das historische Schulhaus Paul Klee behutsam erweitert. Der neue Bau fügt sich in Grösse und Form harmonisch ins bestehende Ensemble ein und stärkt den Altbau als Herzstück der Anlage.

Die neuen Aussenräume sind von Paul Klees Kunstwerk inspiriert und verbinden Schulhaus, Turnhalle und Aula zu einem lebendigen Ganzen. Es entstehen vielfältige Plätze zum Spielen, Lernen und Verweilen. Der Neubau setzt auf natürliche Materialien wie Holz und Lehm, nutzt Solarenergie und fördert mit begrünten Flächen das lokale Klima und die Biodiversität. So entsteht ein zeitgemässer Lern- und Lebensraum, der auf die Bedürfnisse der Kinder eingeht und die besondere Atmosphäre des Ortes bewahrt.

Schulanlage Vogtsrain
Selektiver Projektwettbewerb | 2024 | 4. Rang

+

Mit Klötzli Friedli Landschaftsarchitekten AG

Das Projekt «Scala» besteht aus einem Hochbau und einem gestaffelten Sockelbau. Der Hochbau prägt die Adresse und öffnet sich mit einer grosszügigen Mensa und flexiblen Betreuungszonen zur neu gestalteten Pausenterrasse. Eine zentrale Mittelzone verbindet die Räume geschossübergreifend mit der Bibliothek – Sitzstufen laden zu Veranstaltungen und Begegnungen ein.

In den Obergeschossen entstehen zwei Cluster mit Klassenzimmern, Gruppenräumen und offenen Lernbereichen. Flexible Vorzonen, Querlüftung und gesicherte Nachtauskühlung schaffen eine angenehme Lernatmosphäre.

Der Sockelbau nimmt Werk- und Handarbeitsräume auf, die direkt in den Aussenraum erweitert werden können. Im Untergeschoss liegen Küche und Lagerräume und durch Sichtbezüge zur Bibliothek wird die Küche Teil des pädagogischen Konzepts. Ein neuer Korridor verbindet den Neubau mit dem Bestand und macht die gesamte Anlage inkl. Pausenterrasse barrierefrei zugänglich. So entsteht ein vielschichtiges Lernhaus, das Offenheit, Funktionalität und architektonische Präsenz vereint.

Siedlung Grabenacker, Winterthur
Selektiver Studienauftrag | 2024

+

mit Wild Stark Architekten, Klötzli Friedli Landschaftsarchitekten AG & sofa*p

Die Wettbewerbsaufgabe gliedert sich in vier Baubereiche und besteht darin, der Siedlung Grabenacker das zu geben, was ihr bisher gefehlt hat und das zu verstärken, was sie auszeichnet. Gefehlt haben bisher ein Wohnungsmix, der sämtliche Lebensphasen und Haushaltsformen abdeckt und ein differenziertes Angebot an Wohnräumen, das den heutigen Anforderungen gerecht wird. Vorgefunden haben wir eine starke gemeinschaftliche Identität, die durch klare, zurückhaltende Baukörper geprägt ist und durch viele individuell angepasste Freiräume besticht.

Diese Dialektik zwischen unverrückbarer Starrheit und lebendiger Flexibilität schafft einen starken Wohnort, der über lange Zeiträume hinweg Stabilität verspricht. Er wird über die vorgeschlagenen Neubauten und die Neugestaltung der am Bestand orientierten Freiräume gestärkt.

Erweiterung Schulanlage Hellmatt, Möriken-Wildegg
Selektiver Projektwettbewerb | 2023 | 4. Rang

+

mit Habitat Landschaftsarchitekten AG

Der Neubau ergänzt das Ensemble aus Pavillonschule, Oberstufenschulhaus und Mehrzweckgebäude und fasst gemeinsam mit ihnen den zentralen Eingangsplatz als neuen Aufenthalts- und Begegnungsort. Eine grosse Freitreppe verbindet die Ebenen des Geländes, schafft Identität und bindet den Bau in die bestehende Anlage ein.

Das Gebäude ist als klares, repetitives Volumen mit Dachform in Anlehnung an die Pavillonschule der 60er-Jahre konzipiert. In den Obergeschossen teilen jeweils vier Klassenzimmer eine gemeinschaftliche Halle als Vorzone und Aufenthaltsraum, eine moderne Lernlandschaften im Sinne des Lehrplan 21. Im Erdgeschoss befinden sich die geteilten Fachräume, teils mit direktem Bezug zum Aussenraum. Das Grundrisskonzept erlaubt eine flexible Nutzung: Auch ausserhalb der Schulzeiten können einzelne Räume separat geöffnet und vielfältig bespielt werden.

Schulhaus Umiken, Brugg
Selektiver Projektwettbewerb | 2022

+

Auftraggeber Stadt Brugg | mit Architheke AG

Das 1920er-Jahre-Schulhaus in Umiken, geprägt vom Schweizer Heimatstil, bleibt als identitätsstiftendes Gebäude erhalten und wird durch einen Neubau ergänzt. Der neue Baukörper mit Kindergärten im Erdgeschoss sowie Klassen- und Gruppenräumen in den Obergeschossen steht nordwestlich des Bestands und bildet zusammen mit ihm einen klar definierten Pausenplatz als neuen Mittelpunkt der Anlage.

Der Altbau wird für die Tagesstrukturen umgenutzt: Die ehemalige Turnhalle wird zum Ess- und Aufenthaltsraum mit Küche, Garderoben und Ruheräumen, ergänzt durch einen neuen barrierefreien Zugang im Norden und einen Übereck-Lift. So bleibt die historische Eingangshalle Teil der Tagesstrukturen, während die oberen Geschosse mit Spezialzimmern weiter genutzt werden.

Ein neues Pausendach verbindet Bestand und Neubau und schafft wettergeschützte Wege. Zusammen entsteht ein Ensemble, das den Bestand respektvoll weiterentwickelt und funktional für den Tagesschulbetrieb erweitert.

Halle für Alle, Richterswil
Studienauftrag im selektiven Verfahren | 2021

+

Auftraggeber Gemeinde Richterswil | Mit Hoffmann Müller Landschaftsarchitektur GmbH

Die «Halle für Alle» ist ein eigenständiger Neubau südwestlich der Schule, der das Schulareal mit seinen Freiräumen verbindet. Sie setzt eine klare Adresse zur Hauptstrasse und öffnet sich zugleich zum Pausenplatz und zum neuen Rasensportfeld. Das kompakte Gebäude vereint Sport, Begegnung und Öffentlichkeit in einem nachhaltigen und wirtschaftlichen Volumen.

Im Inneren schafft eine zentrale «Rue Intérieure» eine Verbindung zwischen Nord- und Südeingang und bindet Turnhalle, Foyer und Tribüne an die Außenräume an. Über grosszügige Treppen und vorgelagerte Vorzonen entstehen fließende Übergänge zwischen den Ebenen und eine direkte Verbindung zu den Spielfeldern. Die Schwimmhalle und der darüber liegende Hartplatz ergänzen das Sportangebot und machen die Halle flexibel nutzbar, sowohl für Schule als auch für die Öffentlichkeit.

Gesamtsanierung und Erneuerung Freibad Marzili, Bern
Studienauftrag im selektiven Verfahren | 2021

+

Mit Carolin Riede Landschaftsarchitektur & Fanzun AG | Auswahl als Nachwuchsteam

Die Hauptinterventionen konzentrieren sich auf zwei Orte: das neue Eingangsgebäude und den Badekosmos. Das Eingangsgebäude entlang der Marzilistrasse schafft einen klaren Vorplatz für Bad und Quartier, integriert die bestehenden Bäume und verbindet die Velorampe zum oberen Velodeck. Der Marktplatz dient als Treffpunkt und Bereich für Essensangebote.

Der Badekosmos besteht aus zwei Volumen mit begehbaren Dächern, verbunden durch ein mittleres Deck. Ein dazwischen gespannter Grünraum bietet geschützte Liegeflächen und öffnet den Blick über das Areal bis zur Aare. Die leichte Holzstruktur integriert Sonnenschutz, Sitzflächen und Hochwasserschutz und kann nachts geschlossen werden. Gezielte Eingriffe stellen den ursprünglichen Inselcharakter wieder her: Ein neuer Aarehafen, Uferpromenaden und zusätzliche Pflanzungen schaffen Aufenthaltsqualität und ermöglichen künftige Entwicklungen, inklusive einer möglichen Wiederführung des Löifu.

Gesamtplanung Schule Rothus, Ostermundigen
Selektives Planerwahlverfahren | 2021 | 1. Rang | In Ausführung

+

Mit Müller Wildbolz Landschaftsarchitekten

Der Neubau setzt sich als Punkt- und Kopfbau an die nordöstliche Grundstücksecke, markiert den Auftakt der Anlage und fasst sie gegen Norden. Gemeinsam mit dem heutigen Spezial- und künftigen Schultrakt sowie der Turnhalle entsteht ein neuer Ankunfts- und Pausenplatz. Am südwestlichen Arealrand ergänzt ein Pausenpavillon die Anlage mit einer grosszügig überdachten Aussenfläche.

Die beiden Punktbauten bilden den baulichen Abschluss, zwischen ihnen spannt sich die bestehende Anlage auf. Die Freiräume orientieren sich jeweils in unterschiedliche Himmelsrichtungen und nehmen die ursprüngliche Konzeption der Anlage auf: jeder Baukörper öffnet sich in eine andere Richtung und erweitert so die Aussenräume über die Grundstücksgrenze hinaus. Die präzise Setzung des Neubaus und die Gestaltung der Freiräume stärken das klare Konzept gefasster Binnen- und Aussenräume und binden sich sensibel in die denkmalgeschützte Gesamtanlage ein – das Leitmotiv von „Emil und die drei Zwillinge“.

Siehe hier für mehr Infos zur Ausführung.

Mehrzweckanlage Effretikon
Projektwettbewerb im offenen Verfahren | 2020

+

Die komplexe Aufgabenstellung mit mehreren Nutzern wird in eine klare, kraftvolle Architektur übersetzt. Längs angeordnete Hallen mit Sheddächern formen eine rhythmische, wellenartige Struktur, die sich dem sanften Geländeanstieg anpasst. Sechs Gebäudetranchen gliedern die Anlage: Drei bilden das Hauptvolumen, zwei den offenen Werkhof und eine die Entsorgungsanlage. So entsteht eine ausgewogene Komposition, die den Werkhof rahmt und in ihrer Körnigkeit auf die Umgebung reagiert.

Das Volumen folgt dem Terrain und nutzt den Höhenunterschied für funktionale Vorteile. In der zweiten, mehrgeschossigen Tranche ermöglicht ein Split-Level differenzierte Raumhöhen und direkte Bezüge zwischen den Nutzungsbereichen. Im Untergeschoss liegen Zivilschutzräume sowie Garage und Lagerflächen, die ohne Tageslicht auskommen. Die sechste Tranche, die Sammelstelle, schliesst die Anlage im Nordosten ab und nimmt die statische Logik des Hauptvolumens auf.

Schulhaus Wasserwerkstrasse, Zürich
Planerwahl im offenen Verfahren | 2019 | 1. Rang | Gebaut

+

Der dreigeschossige Bau am rechten Limmatufer wurde 1783 als erste grosse Fabrikanlage ausserhalb der Zürcher Stadtmauern errichtet und steht unter Denkmalschutz. Heute dient er als Hort, einzelne Räume sind vermietet. Da eine Totalsanierung ab 2030 geplant ist, wurde eine befristete Instandsetzung für zehn Jahre samt Umbau unter laufendem Betrieb ausgeschrieben.

Die grössten Eingriffe erfolgen im Untergeschoss mit neuem Mehrzweck- und Esssaal, Gastroküche und WC-Anlagen. Frühere Umbauten aus den 70er-/80er-Jahren werden rückgebaut, um eine offene Erschliessungszone mit Garderoben zu schaffen. Ein Lift und die Anbindung des historischen Treppenhauses werten das Untergeschoss auf. Im Erd- und Obergeschoss werden Sanitärstränge erneuert, drei Klassenzimmer eingerichtet sowie Brandschutz, Akustik, Beleuchtung und Farbkonzept überarbeitet. Das Zusammenspiel von Bestehendem und Neuem klärt die Struktur und verwandelt das denkmalgeschützte Fabrikgebäude behutsam in eine lichte, kindgerechte und funktionale Schule.

Siehe hier für mehr Infos zum Bau.

FCZ-Campus Heerenschürli, Zürich
Projektwettbewerb im Einladungsverfahren | 2018 | 2. Rang

+

Das neue Trainingszentrum des FCZ entsteht im Nordosten der Parzelle, direkt neben dem neuen Spielfeld. Durch die kompakte Stapelung der Nutzungen entsteht ein Haus mit kleinem Fussabdruck und grosser Präsenz: Das viergeschossige Volumen ist auf dem gesamten Areal Heerenschürli sichtbar und markiert den Standort selbstbewusst.

Acht durchgehende Stahlbetonscheiben bilden das statische und räumliche Gerüst. Das Treppenhaus funktioniert als Doppelhelix - eine öffentliche Treppe für Besucher und eine interne für den FCZ winden sich um ein gemeinsames Auge nach oben. Im Erdgeschoss liegen die Garderoben, in einem introvertierten Sockel mit horizontalen Lichtbändern.

Das 1. Obergeschoss beherbergt grosszügige, teils öffentliche Nutzungen und bildet als «Piano Nobile» das Herz des Gebäudes. Darüber liegen die Büroräume, während das Dachgeschoss eine Terrasse und die Haustechnik aufnimmt: ein Untergeschoss wird dadurch überflüssig. Eine durchgehende, textil anmutende Lochblechhaut umhüllt das Gebäude; vertikal öffnende Klappläden dienen als Sonnenschutz und lassen die Fassade im Tagesverlauf lebendig changieren.

Neugestaltung Stadtpark, Kempten im Allgäu
Ideen- und Realisierungswettbewerb im offenen Verfahren | 2017

+

Mit Kerstin Marx Landschaftsarchitektin FH

Gegenstand des Ideen- und Realisierungswettbewerbs ist die Neugestaltung der Freiflächen des zentralen Stadtparks und der angrenzenden Bereiche in Kempten. Ziel ist ein Konzept, das die vielseitige Nutzung des Parks, seine städtebauliche Bedeutung und die Lage in unmittelbarer Nähe zum historischen Zentrum berücksichtigt.

Der Stadtpark, einst verbindendes Element zwischen Reichs- und Stiftsstadt, ist heute als grüne Lunge Kemptens – nicht zuletzt durch die «Allgäuer Festwoche» – fest im Bewusstsein der Bevölkerung verankert. Aufbauend auf den historischen Strukturen, Parkkanten und gartenhistorisch prägenden Elementen wird die ursprüngliche Gestaltung aufgegriffen und behutsam weiterentwickelt.

Die Neubauten fügen sich zurückhaltend in den Bestand und wahren die Durchlässigkeit zwischen Park, Alt- und Neustadt. Eine offene zentrale Rasenfläche, gefasst von einem ovalen Rahmen, bildet das Herzstück. An vier Stellen öffnen sich Terrassen mit Wasserbecken, Sitz- und Liegekanten – Orte zum Verweilen, Begegnen und Spazieren.

Pfarrei St. Maria, Ins
Projektwettbewerb im offenen Verfahren | 2016

+

Mit Katrin Gurtner Architektin MSc ETH und Stauffer Rösch Landschaftsarchitekten AG

Die 1964 vom Architektenteam atelier 64 erbaute katholische Kirche St. Maria liegt an einer ruhigen Dorfstrasse im Berner Seeland und ist im Bauinventar des Kantons Bern aufgeführt. Eine Machbarkeitsstudie zeigte sowohl den Sanierungsbedarf der Anlage als auch den Wunsch nach grosszügigen, flexibel nutzbaren Räumen für Saal, Foyer und Unterricht. Mit einem (Teil-)Ersatz des bestehenden Pfarreigebäudes soll die Anlage an heutige Bedürfnisse angepasst und ergänzt werden.

Leicht erhöht fügt sich die Kirche trotz ihres modernen Ausdrucks selbstverständlich in die heterogene Quartierstruktur ein. Das neue Pfarreigebäude positioniert sich an prominenter Stelle der Zufahrtsstrasse. Der kompakte Baukörper schafft beim Haupteingang zur Kirche einen klaren Freiraum, stärkt die Wegführung und öffnet neue Blickbeziehungen. Eine grosszügige Freitreppe führt sanft ansteigend zum Pfarreizentrum und Kirchplatz. Zwischen Kirche, Sakristei und Neubau entsteht ein gemeinsamer Platz, der zum zentralen Treffpunkt wird – Foyer und Saal öffnen sich zum Aussenraum und bieten vielfältige Ausblicke und Verbindungen.

Restaurant Tierpark Dälhölzli, Bern
Projektwettbewerb im offenen Verfahren | 2016 | 5. Rang

+

Mit Peter Leibacher Architekt MSc ETH

Das Restaurant Dählhölzli am Aareufer in Bern wurde 1937/38 als Sommerrestaurant für Tierparkbesucher*innen erbaut. Nach mehreren Umbauten in den 1990er Jahren fordert ein Stadtratsbeschluss von 2012 eine umfassende Sanierung und ein neues Gastronomiekonzept. Ziel ist es, mehr gedeckte Sitzplätze zu schaffen und den Betrieb zu modernisieren.

Das neue Konzept respektiert die bestehende Anlage, den Baumbestand und die strengen Rahmenbedingungen von Denkmalschutz, Hochwasserschutz und Gartendenkmalpflege. Ein Pavillon mit grossflächig öffnenden Fensterfronten und vorfabrizierten Holzelementen orientiert sich dreiseitig zum Biergarten, zur Aare und zum Pelikanbecken. Die bestehende Terrasse wird integriert, das Dach schwebt über den Baumkronen. Schiebeelemente ermöglichen flexible Nutzung, während die Gestaltung Abstand zum Bestand wahrt und gleichzeitig einen klar definierten, identitätsstiftenden Ort schafft.